Innenraum einer großen Industrieanlage mit blauen Stahlträgern, gelben Geräten, Brückenkränen und Metallstegen unter heller Beleuchtung, konzipiert für elastische Entkopplung zur Reduzierung von Erschütterungen im gesamten Arbeitsbereich. Stahl- und Industriebauten

Stahl- und Industriebauten

Stahltragwerke reagieren aufgrund ihrer geringen Masse und niedrigen strukturellen Dämpfung besonders sensibel auf dynamische Einwirkungen. Schwingungen bleiben dabei oft lange unauffällig, bis sie im Betrieb nicht mehr ignoriert werden können.

Betriebslasten aus Maschinen, Kranbewegungen oder Prozessanlagen können zu spürbaren Schwingungen, erhöhten Verformungen oder langfristigen Ermüdungserscheinungen führen.
In Stahlkonstruktionen lassen sich diese Effekte nachträglich meist nur mit erheblichem Aufwand korrigieren.

Eine schwingungstechnische Betrachtung von Stahl- und Industriebauten zielt darauf ab, dynamische Effekte frühzeitig zu erfassen, konstruktiv beherrschbar zu machen und die Gebrauchstauglichkeit der Tragstruktur dauerhaft sicherzustellen.

Anwendungsbereiche

Wirkzusammenhang von Dynamik und Tragstruktur

Im Gegensatz zu massiven Bauwerken bestimmen bei Stahltragwerken Eigenfrequenzen, Schwingformen und Dämpfung maßgeblich das dynamische Verhalten. Wiederkehrende Anregungen aus Betrieb oder Bewegung können Resonanzeffekte auslösen, die sich nicht über klassische statische Nachweise erfassen lassen.

Genau hier entsteht häufig eine Lücke zwischen statischer Bemessung und tatsächlichem Betriebsverhalten.
Schwingungstechnische Maßnahmen setzen an der Wechselwirkung zwischen Anregungsquelle, Tragstruktur und konstruktiver Ausbildung an.

Dazu gehören die gezielte Beeinflussung von Steifigkeiten, Massenverteilungen, Lagerungen sowie die Vermeidung ungünstiger Kopplungen innerhalb des Tragwerks

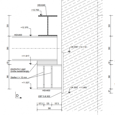
Technische Architekturschnittzeichnung mit Stahlträgern (HEA340, HEA400), Stahl- und Industriebauten, Dämmung und konstruktiven Details für einen Wand- und Bodenanschluss mit Überlegungen zu Körperschall und elastischer Gebäudelagerung.

Nutzen für die Planung

Planung und Auslegung

Die schwingungstechnische Betrachtung erfolgt projektspezifisch unter Berücksichtigung von Geometrie, Lasten, Betriebszuständen und konstruktiven Randbedingungen. Darauf aufbauend werden Maßnahmen entwickelt, die sich in das Tragwerkskonzept integrieren lassen, ohne Funktion oder Nutzung einzuschränken.

Konstruktive Umsetzung

Im Fokus stehen realistische Modellannahmen, nachvollziehbare Randbedingungen sowie Lösungen, die auch im Betrieb dauerhaft wirksam bleiben. Ziel ist eine konstruktiv robuste und betriebssichere Auslegung, die sowohl statischen als auch dynamischen Anforderungen gerecht wird.

Typische Maßnahmen und Ansätze

Wenn bei Stahl- oder Industriebauten dynamische Einwirkungen nicht eindeutig bewertet sind, lässt sich mit einer kurzen Beschreibung des Tragwerks, der Nutzung und der relevanten Anregungsquellen frühzeitig klären, ob Handlungsbedarf besteht.

Sebastian Sturm M.Sc.

info@sturm-lager.de

+49 (0)2161 4734416

Ein Mann mit kurzen braunen Haaren und hellen Augen trägt ein hellblaues Hemd mit Kragen und schaut vor einem neutralen Hintergrund direkt in die Kamera.